3D viewer
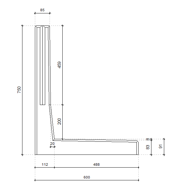
Technische tekening
Beschrijving
De LG-keerwand (Green Series) is speciaal ontwikkeld voor de lichtere belastingstoepassingen in de grond, weg- en waterbouw en is in meerdere lengtematen verkrijgbaar.
Voor hoekoplossingen zijn ook vaste L-keerwand hoekelementen beschikbaar. De Green Series maken gebruik van een alternatief wapeningsprincipe en een duurzaam betonmengsel. Beter voor het milieu en uw portemonnee!
* De keerwand heeft een totale netto hoogte, waardoor deze makkelijk in te meten en in te bouwen is.
* De voetzijde is de belastingzijde.
* Door de haakse achterzijde ontstaat er na het plaatsen een mooie maatvaste rechte keermuur.
* Deze keerwand heeft een levensduur van tenminste 50 jaar.
Voor hoekoplossingen zijn ook vaste L-keerwand hoekelementen beschikbaar. De Green Series maken gebruik van een alternatief wapeningsprincipe en een duurzaam betonmengsel. Beter voor het milieu en uw portemonnee!
* De keerwand heeft een totale netto hoogte, waardoor deze makkelijk in te meten en in te bouwen is.
* De voetzijde is de belastingzijde.
* Door de haakse achterzijde ontstaat er na het plaatsen een mooie maatvaste rechte keermuur.
* Deze keerwand heeft een levensduur van tenminste 50 jaar.
Specificaties
| Betonreceptuur | 3rd generation self-compacting C55/67 | Gewicht | 530kg (L = 1990mm) |
|---|---|---|---|
| Maattolerantie | +/- 5mm | Zichtbetonklasse | Alle zichtzijdes klasse A (B1 op aanvraag) |
| Ontwerplevensduur | 50 jaar | Productgarantie | 10 jaar |
| Milieuklasse | XA3, XC4, XD3, XS3, XF4 | Hijsvoorziening | Geen, plaatsen met klem |