3D viewer
Technische tekening
LR-keerwanden (met hak) - LR050H
De LR-keerwand met hak is speciaal ontwikkeld voor de zwaarste (H=heavy) belastingtoepassingen in de grond, weg- en waterbouw en is in meerdere lengtematen verkrijgbaar. De LR-keerwand...
Lees verder
- Snel naar:
- Beschrijving
- Specificaties
- Opties
- Gerelateerde producten
Beschrijving
De LR-keerwand met hak is speciaal ontwikkeld voor de zwaarste (H=heavy) belastingtoepassingen in de grond, weg- en waterbouw en is in meerdere lengtematen verkrijgbaar. De LR-keerwand is aan de kopzijde altijd 150mm dik en is voorzien van een speciale koppellatsparing. Hierdoor kan deze keerwand heel goed in verschillende hoogtesprongen worden geplaatst.
* De hak creëert meer stabiliteit waardoor een hogere belasting mogelijk is.
* De keerwand heeft een totale nettohoogte, waardoor deze makkelijk in te meten en in te bouwen is.
* De voetzijde is de belastingzijde.
* Door de haakse achterzijde ontstaat er na het plaatsen een mooie maatvaste rechte keermuur.
* Op de hak kan (indien gewenst) na plaatsing nog montage van bijvoorbeeld een schanskorf of metselwerk plaatsvinden.
* De stevige uitvoering maakt deze keerwand heel geschikt voor zware (chemische) milieutoepassingen.
* Deze keerwand heeft een levensduur tot maar liefst 100 jaar
* De hak creëert meer stabiliteit waardoor een hogere belasting mogelijk is.
* De keerwand heeft een totale nettohoogte, waardoor deze makkelijk in te meten en in te bouwen is.
* De voetzijde is de belastingzijde.
* Door de haakse achterzijde ontstaat er na het plaatsen een mooie maatvaste rechte keermuur.
* Op de hak kan (indien gewenst) na plaatsing nog montage van bijvoorbeeld een schanskorf of metselwerk plaatsvinden.
* De stevige uitvoering maakt deze keerwand heel geschikt voor zware (chemische) milieutoepassingen.
* Deze keerwand heeft een levensduur tot maar liefst 100 jaar
Downloads
- LR050H_BE.pdf
- LR050H.ifc
- LR050H.dwg
- LRH_Belastingschema_2_NL.pdf
- Certificaten
- KOMO_productcertificaat_bouwelemten-van-beton_17-05-2019_K2663-11.pdf
- NL_BSB_productcertificaat_vooraf-vervaardigde-betonproducten_17-05-2019_K85568-03.pdf
- CPR_conformiteitscertificaat-van-de-productiecontrole-in-de-fabriek_17-05-2019_CPR-56074-05.pdf
- CSC-certificaat Goud 141-CSC19-2019.pdf
- Zertifikat über die verwendbarkeit in Bauwerken 1329.7.119-1.pdf
- Gütezeichen-Urkunde 1329-M-2020.pdf
- Übereinstimmungszertifikat Beton nach Eigenschaften 1329.1.2040.-1.pdf
Specificaties
| Betonreceptuur | 2nd generation self-compacting C60/75 | Wapeningsstaal | B500 |
|---|---|---|---|
| Gewicht | 1374kg (L = 3995mm) | Betondekking | 45mm |
| Maattolerantie | +/- 5mm | Zichtbetonklasse | Alle zichtzijdes klasse A (B1 op aanvraag) |
| Ontwerplevensduur | 100 jaar | Productgarantie | 10 jaar |
| Milieuklasse | XA3, XC4, XD3, XS3, XF4 | Hijsvoorziening | Geen, plaatsen met klem |
Extra opties
Inkorten en overige aanpassingen
Aansluiting Tussenwand
Aansluiting U-wand
Afschuining
Standaard hoekoplossing
Inkorten en overige aanpassingen
Indien gewenst kunnen de keerwanden worden ingekort, speciaal worden uitgespaard of aangepast. Onze keerwanden kunnen bijvoorbeeld worden voorzien van speciale instortvoorzieningen zoals gains, hijsankers of stekken (uitstekende wapeningsdelen t.b.v. aanstort). Ook kunnen de keerwanden worden voorzien van een verdikte kop voor montage bovenop de keerwand of van een speciaal relief.
Als u ons een schets van uw situatie kunt aanleveren, tekenen wij de aanpassing voor u in. Op deze wijze bent u zeker van een juiste maatwerkoplossing.
Als u ons een schets van uw situatie kunt aanleveren, tekenen wij de aanpassing voor u in. Op deze wijze bent u zeker van een juiste maatwerkoplossing.
-
Wij werken graag duurzaam, ook in geval van maatwerk. Door ons tijdig te informeren kunnen wij uw aanpassing al vooraf in onze productie verwerken. Hiermee voorkomen we onnodige verspilling van materialen of zaagwerk achteraf.
-
Indien er onontkoombaar afval ontstaat bij een wandaanpassing, dan recyclen wij het betonafval en passen we dit wederom toe in ons productieproces.
Aansluiting Tussenwand
Tussenwanden zijn goed te combineren met andere wandtypen, bijvoorbeeld in het geval van een opslagsysteem of een sleufsilo waarbij geen vocht mag lekken. Hiervoor is het belangrijk dat de Tussenwand op het aansluitingspunt de juiste vorm heeft om volledig aan te kunnen sluiten op de andere wand.
Als u ons een schets van uw situatie kunt aanleveren, tekenen wij de hoekoplossing voor u in. Op deze wijze bent u zeker van een juiste maatwerkoplossing.
Als u ons een schets van uw situatie kunt aanleveren, tekenen wij de hoekoplossing voor u in. Op deze wijze bent u zeker van een juiste maatwerkoplossing.
-
Wij werken graag duurzaam, ook in geval van maatwerk. Door ons tijdig te informeren kunnen wij uw aanpassing al vooraf in onze productie verwerken. Hiermee voorkomen we onnodige verspilling van materialen of zaagwerk achteraf.
-
Indien er onontkoombaar afval ontstaat bij een wandaanpassing, dan recyclen wij het betonafval en passen we dit wederom toe in ons productieproces.
Aansluiting U-wand
U-wanden zijn goed te combineren met andere wandtypen, bijvoorbeeld in het geval van een opslagsysteem of een sleufsilo waarbij geen vocht mag lekken. Hiervoor is het belangrijk dat de U-wand op het aansluitpunt de juiste vorm heeft om volledig aan te kunnen sluiten op de andere wand.
Als u ons een schets van uw situatie kunt aanleveren, tekenen wij de hoekoplossing voor u in. Op deze wijze bent u zeker van een juiste maatwerkoplossing.
Als u ons een schets van uw situatie kunt aanleveren, tekenen wij de hoekoplossing voor u in. Op deze wijze bent u zeker van een juiste maatwerkoplossing.
-
Wij werken graag duurzaam, ook in geval van maatwerk. Door ons tijdig te informeren kunnen wij uw aanpassing al vooraf in onze productie verwerken. Hiermee voorkomen we onnodige verspilling van materialen of zaagwerk achteraf.
-
Indien er onontkoombaar afval ontstaat bij een wandaanpassing, dan recyclen wij het betonafval en passen we dit wederom toe in ons productieproces.
Afschuining
Indien u graag een afschuining wenst of een afschuining die over meerdere elementen doorloopt kunnen wij een afschuining op maat realiseren.
Als u ons een schets van uw situatie kunt aanleveren, tekenen wij de afschuining voor u in. Op deze wijze bent u zeker van een juiste maatwerkoplossing.
Als u ons een schets van uw situatie kunt aanleveren, tekenen wij de afschuining voor u in. Op deze wijze bent u zeker van een juiste maatwerkoplossing.
-
Wij werken graag duurzaam, ook in geval van maatwerk. Door ons tijdig te informeren kunnen wij uw aanpassing al vooraf in onze productie verwerken. Hiermee voorkomen we onnodige verspilling van materialen of zaagwerk achteraf.
-
Indien er onontkoombaar afval ontstaat bij een wandaanpassing, dan recyclen wij het betonafval en passen we dit wederom toe in ons productieproces.
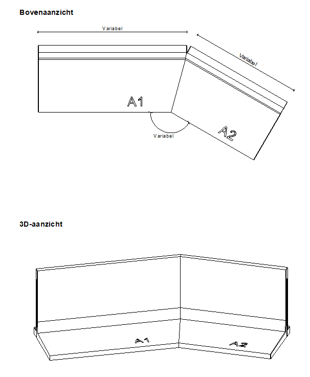
Standaard hoekoplossing
Voor al onze keerwandtypen is een standaard 90 graden hoekoplossing beschikbaar. Bij een afwijkende hoek kan een hoekoplossing op maat worden gerealiseerd.
Als u ons een schets van uw situatie kunt aanleveren, tekenen wij de hoekoplossing voor u in. Op deze wijze bent u zeker van een juiste maatwerkoplossing.
Als u ons een schets van uw situatie kunt aanleveren, tekenen wij de hoekoplossing voor u in. Op deze wijze bent u zeker van een juiste maatwerkoplossing.
-
Wij werken graag duurzaam, ook in geval van maatwerk. Door ons tijdig te informeren kunnen wij uw aanpassing al vooraf in onze productie verwerken. Hiermee voorkomen we onnodige verspilling van materialen of zaagwerk achteraf.
-
Indien er onontkoombaar afval ontstaat bij een wandaanpassing, dan recyclen wij het betonafval en passen we dit wederom toe in ons productieproces.