3D viewer
Technische tekening
Beschrijving
De TWA-keerwanden zijn speciaal ontwikkeld voor agrarische toepassingen zoals sleufsilo's, biogassilo's. Maar juist door het ontwerp zijn zij ook zeer geschikt voor binnenopslagsystemen zoals zoutloodsen en recycleopslag. Hierbij dienen ze als ruimtebesparende tussenwand bij de realisatie van meerdere silo-of opslagkamers. De T-keerwanden zijn uniek omdat zij van beide zijden volledig in staat zijn de zware druk- en stootkrachten op te vangen van in-en uitkuilen middels zware shovels en tractoren. TWA-keerwanden zijn in 2 varianten verkrijgbaar; de TWA_15T keerwanden voor een maximale aslast van 15 ton, en de TWA_20T keerwanden voor een maximale aslast van 20 ton.
* Beide voetzijdes zijn belastingzijdes waarop - onafhankelijk per zijde - tot aan de rand kan worden ingekuild/opgevuld met zware shovels of tractoren.
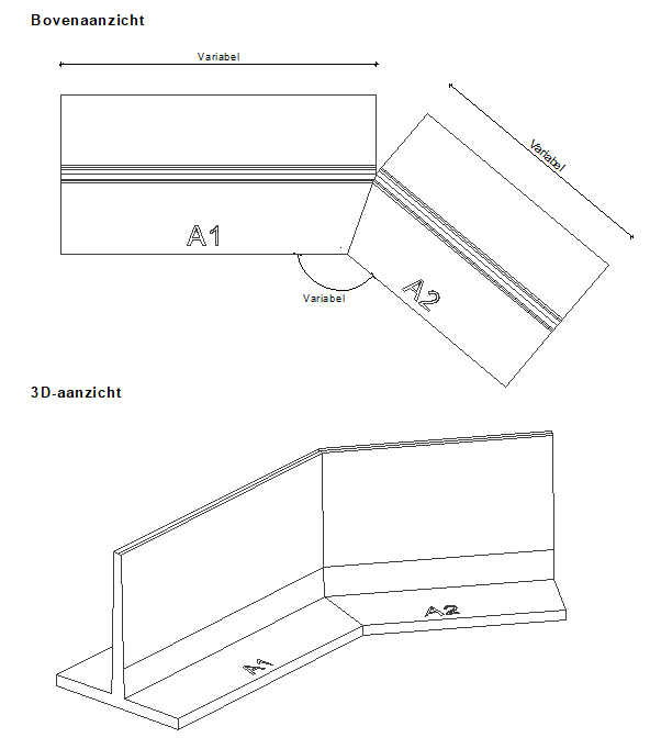
* Beide binnenzijdes hebben een totale nettohoogte.
* Door de voet in de (silo)vloer in te bouwen gaat er geen inkuilhoogte/opvulhoogte verloren en is de opslagcapaciteit makkelijk te berekenen.
* De TWA-keerwanden hebben zowel in het opstaande wandgedeelte als in het voetgedeelte een licht conische vorm voor het juiste afschot.
* Ook zijn zij allen voorzien van een extra hoge stootkant als bescherming voor perssappen en beschadigingen tijdens het uitkuilen/vullen en lossen.
* De afgeronde hoeken zorgen dat het kuilfolie/afdekfolie niet wegglijd en of beschadigd.
Voor een complete silo zijn er tevens bijpassende accessoires beschikbaar zoals perssapputten, de Bosch Beton goot en betonvloerplaten.
* Beide voetzijdes zijn belastingzijdes waarop - onafhankelijk per zijde - tot aan de rand kan worden ingekuild/opgevuld met zware shovels of tractoren.
* Beide binnenzijdes hebben een totale nettohoogte.
* Door de voet in de (silo)vloer in te bouwen gaat er geen inkuilhoogte/opvulhoogte verloren en is de opslagcapaciteit makkelijk te berekenen.
* De TWA-keerwanden hebben zowel in het opstaande wandgedeelte als in het voetgedeelte een licht conische vorm voor het juiste afschot.
* Ook zijn zij allen voorzien van een extra hoge stootkant als bescherming voor perssappen en beschadigingen tijdens het uitkuilen/vullen en lossen.
* De afgeronde hoeken zorgen dat het kuilfolie/afdekfolie niet wegglijd en of beschadigd.
Voor een complete silo zijn er tevens bijpassende accessoires beschikbaar zoals perssapputten, de Bosch Beton goot en betonvloerplaten.
Specificaties
| Betonreceptuur | 2nd generation self-compacting C60/75 | Wapeningsstaal | B500 |
|---|---|---|---|
| Gewicht | 3100kg (L = 3995mm) | Betondekking | 30mm |
| Maattolerantie | +/- 5mm | Zichtbetonklasse | Alle zichtzijdes klasse A (B1 op aanvraag) |
| Ontwerplevensduur | 50 jaar | Productgarantie | 20 jaar |
| Milieuklasse | XA3, XC4, XD3, XS3, XF4 | Hijsvoorziening | Geen, plaatsen met klem |