3D viewer
Technische Zeichnung
LA-Stützwände (Agrar) - LA150G
Die LA-Stützwände wurden speziell zum Einsatz im Agrarbereich entwickelt, zum Beispiel für Fahrsilos, Biogassilos, Güllesilos usw. Zur Gewährleistung maximaler Stabilität und Sicherheit verfügen sie immer über...
Mehr lesen
- Schnell zu:
- Beschreibung
- Spezifikationen
- Optionen Angebot anfordern
Beschreibung
Die LA-Stützwände wurden speziell zum Einsatz im Agrarbereich entwickelt, zum Beispiel für Fahrsilos, Biogassilos, Güllesilos usw. Zur Gewährleistung maximaler Stabilität und Sicherheit verfügen sie immer über einen Absatz. Einzigartig an diesen Stützwänden ist, dass sie voll beständig gegen die schweren Druck- und Stoßbelastungen sind, die beim Ein- und Aussilieren mit großen Baggern und Traktoren darauf ausgeübt werden. Die LA-Stützwände sind in drei Ausführungen erhältlich: LA-S-Stützwände für eine maximale Achslast von 10 Tonnen, LA-G-Stützwände für eine maximale Achslast von 15 Tonnen und LA-V-Stützwände für eine maximale Achslast von 20 Tonnen.
* Die Fußseite ist die Belastungs- und Innenseite, auf der Silage mit schweren Baggern und Traktoren bis zum Rand eingelagert werden kann.
* Die Innenseite hat eine Gesamtnettohöhe.
* Durch Einbau des Fußes in den Siloboden geht keine Füllhöhe verloren und lässt die Lagerkapazität sich leicht berechnen.
* Bei den LA-Stützwänden haben sowohl der hochstehende Wandteil als der Fußteil eine leichte Konusform, um das richtige Gefälle sicherzustellen.
* Außerdem sind sie zum Schutz vor Silagesäften und Beschädigungen beim Aussilieren alle mit einem extrahohen Stoßrand versehen.
* Durch die abgerundeten Ecken kann die Silofolie nicht verrutschen oder beschädigt werden.
* Auf der Außenseite der LA-Stützwände können bei Bedarf nach dem Aufstellen noch Spannbänder zum festeren Spannen und Fixieren der Silofolie angebracht werden.
Zur Komplettierung des Silos ist außerdem passendes Zubehör erhältlich, zum Beispiel Silagesaft-Auffangbehälter, Bosch-Beton-Rinnen undBetonbodenplatten.
* Die Fußseite ist die Belastungs- und Innenseite, auf der Silage mit schweren Baggern und Traktoren bis zum Rand eingelagert werden kann.
* Die Innenseite hat eine Gesamtnettohöhe.
* Durch Einbau des Fußes in den Siloboden geht keine Füllhöhe verloren und lässt die Lagerkapazität sich leicht berechnen.
* Bei den LA-Stützwänden haben sowohl der hochstehende Wandteil als der Fußteil eine leichte Konusform, um das richtige Gefälle sicherzustellen.
* Außerdem sind sie zum Schutz vor Silagesäften und Beschädigungen beim Aussilieren alle mit einem extrahohen Stoßrand versehen.
* Durch die abgerundeten Ecken kann die Silofolie nicht verrutschen oder beschädigt werden.
* Auf der Außenseite der LA-Stützwände können bei Bedarf nach dem Aufstellen noch Spannbänder zum festeren Spannen und Fixieren der Silofolie angebracht werden.
Zur Komplettierung des Silos ist außerdem passendes Zubehör erhältlich, zum Beispiel Silagesaft-Auffangbehälter, Bosch-Beton-Rinnen undBetonbodenplatten.
Downloads
- LA150G_DE.pdf
- LA150G.ifc
- LA150G.dwg
- LA_Belastungsplan_DE.pdf
- Zertifikate
- KOMO_attest-met-productcertificaat_Agrarische betonproducten 17-05-2019_K23856-12.pdf
- NL_BSB_productcertificaat_vooraf-vervaardigde-betonproducten_17-05-2019_K85568-03.pdf
- CPR_conformiteitscertificaat-van-de-productiecontrole-in-de-fabriek_17-05-2019_CPR-56074-05.pdf
- CSC-certificaat Goud 141-CSC19-2019.pdf
- Übereinstimmungszertifikat Stahlbetonfertigteile als Teil von Fahrsilos 1329.1.2146-2.pdf
- Zertifikat über die Konformität der werkseigenen Produktionskontrolle (CE) 0793-CPR-1329.6.967-1.pdf
- Zertifikat über die verwendbarkeit in Bauwerken 1329.7.119-1.pdf
- Gütezeichen-Urkunde 1329-M-2020.pdf
- Übereinstimmungszertifikat Beton nach Eigenschaften 1329.1.2040.-1.pdf
Spezifikationen
| Beton Rezeptur | 2nd generation self-compacting C60/75 | Bewehrungsstahl | B500 |
|---|---|---|---|
| Gewicht | 3595kg (L = 3995mm) | Betondeckung | 30mm |
| Maßtoleranz | +/- 5mm | Sichtbetonklasse | Beidseitig Sichtklasse SB2 |
| Entwurfslebensdauer | 50 Jahre | Produktgarantie | 15 Jahre |
| Expositionsklassen | XA3, XC4, XS3, XF3, WF | Hebevorrichtung | Keine, Aufstellung mit Klammer |
Zusätzliche Optionen
Kürzen und sonstige Anpassungen
Anschluss von Zwischenwänden
Anschluss von U-Wänden
Wasserablauf
Abschrägung
Standard-Ecklösung
Kürzen und sonstige Anpassungen
Bei Bedarf können die Stützwände gekürzt, mit einer Aussparung versehen oder angepasst werden. Unsere Stützwände können zum Beispiel mit speziellen eingegossenen Hilfsmitteln wie zum Beispiel Hüllrohren, Hebeankern oder Anschlussstäben (herausragende Bewehrung zum Anbetonieren weiterer Elemente) ausgestattet werden. Außerdem können die Stützwände mit einem speziellen Relief versehen werden oder mit einer verdickten Oberkante, um oben auf der Wand etwas anbringen zu können.
Wenn Sie uns eine Lageskizze zukommen lassen, zeichnen wir die Anpassung für Sie ein. So ist gewährleistet, dass Sie eine passende Lösung nach Maß bekommen.
Wenn Sie uns eine Lageskizze zukommen lassen, zeichnen wir die Anpassung für Sie ein. So ist gewährleistet, dass Sie eine passende Lösung nach Maß bekommen.
-
Wir arbeiten gerne nachhaltig, auch wenn es um Maßarbeit geht. Wenn Sie uns rechtzeitig informieren, können wir die gewünschte Anpassung schon im Voraus einplanen. So verhindern wir unnötige Materialverschwendung oder Sägearbeiten nach der Produktion.
-
Wenn sich bei einer Wandanpassung Abfälle nicht verhindern lassen, recyceln wir den Betonabfall und führen wir ihn dem Produktionsprozess wieder zu.
Anschluss von Zwischenwänden
Zwischenwände lassen sich gut mit anderen Wandtypen kombinieren, zum Beispiel für ein Lagersystem oder Fahrsilo, bei dem keine Feuchtigkeit austreten darf. Wichtig ist dabei, dass die Zwischenwand an der Anschlussstelle die richtige Form hat, damit sie überall bündig an der anderen Wand anliegt.
Wenn Sie uns eine Lageskizze zukommen lassen, zeichnen wir die Ecklösung für Sie ein. So ist gewährleistet, dass Sie eine passende Lösung nach Maß bekommen.
Wenn Sie uns eine Lageskizze zukommen lassen, zeichnen wir die Ecklösung für Sie ein. So ist gewährleistet, dass Sie eine passende Lösung nach Maß bekommen.
-
Wir arbeiten gerne nachhaltig, auch wenn es um Maßarbeit geht. Wenn Sie uns rechtzeitig informieren, können wir die gewünschte Anpassung schon im Voraus einplanen. So verhindern wir unnötige Materialverschwendung oder Sägearbeiten nach der Produktion.
-
Wenn sich bei einer Wandanpassung Abfälle nicht verhindern lassen, recyceln wir den Betonabfall und führen wir ihn dem Produktionsprozess wieder zu.
Anschluss von U-Wänden
U-Wände lassen sich gut mit anderen Wandtypen kombinieren, zum Beispiel für ein Lagersystem oder Fahrsilo, bei dem keine Feuchtigkeit austreten darf. Wichtig ist dabei, dass die U-Wand an der Anschlussstelle die richtige Form hat, damit sie überall bündig an der anderen Wand anliegt.
Wenn Sie uns eine Lageskizze zukommen lassen, zeichnen wir die Ecklösung für Sie ein. So ist gewährleistet, dass Sie eine passende Lösung nach Maß bekommen.
Wenn Sie uns eine Lageskizze zukommen lassen, zeichnen wir die Ecklösung für Sie ein. So ist gewährleistet, dass Sie eine passende Lösung nach Maß bekommen.
-
Wir arbeiten gerne nachhaltig, auch wenn es um Maßarbeit geht. Wenn Sie uns rechtzeitig informieren, können wir die gewünschte Anpassung schon im Voraus einplanen. So verhindern wir unnötige Materialverschwendung oder Sägearbeiten nach der Produktion.
-
Wenn sich bei einer Wandanpassung Abfälle nicht verhindern lassen, recyceln wir den Betonabfall und führen wir ihn dem Produktionsprozess wieder zu.
Wasserablauf
Speziell für Fahrsilos mit seitlichem Gefälle sind die LA-Stützwände für den Agrarbereich mit eingegossenem Wasserablauf lieferbar. Mittels des ausnehmbaren farbigen Deckels kann die Rinne – je nach Umständen – auf sauberes Wasser (blau) oder Schmutzwasser (rot) gestellt werden. Der Benutzer kann je nach Bedarf einfach durch Wechseln des Deckels ändern, was gerade abgeführt wird.
Dieser Wasserablauf kann außen an ein Rohrsystem gekoppelt werden, um dann an den Silagesaft-Auffangbehälter oder Güllekeller bzw. bei sauberem Wasser an einen Wassergraben angeschlossen zu werden.
Wenn Sie uns eine Lageskizze zukommen lassen, zeichnen wir den Wasserablauf für Sie ein. So ist gewährleistet, dass Sie eine passende Lösung nach Maß bekommen.
Dieser Wasserablauf kann außen an ein Rohrsystem gekoppelt werden, um dann an den Silagesaft-Auffangbehälter oder Güllekeller bzw. bei sauberem Wasser an einen Wassergraben angeschlossen zu werden.
Wenn Sie uns eine Lageskizze zukommen lassen, zeichnen wir den Wasserablauf für Sie ein. So ist gewährleistet, dass Sie eine passende Lösung nach Maß bekommen.
-
Wir arbeiten gerne nachhaltig, auch wenn es um Maßarbeit geht. Wenn Sie uns rechtzeitig informieren, können wir die gewünschte Anpassung schon im Voraus einplanen. So verhindern wir unnötige Materialverschwendung oder Sägearbeiten nach der Produktion.
-
Wenn sich bei einer Wandanpassung Abfälle nicht verhindern lassen, recyceln wir den Betonabfall und führen wir ihn dem Produktionsprozess wieder zu.
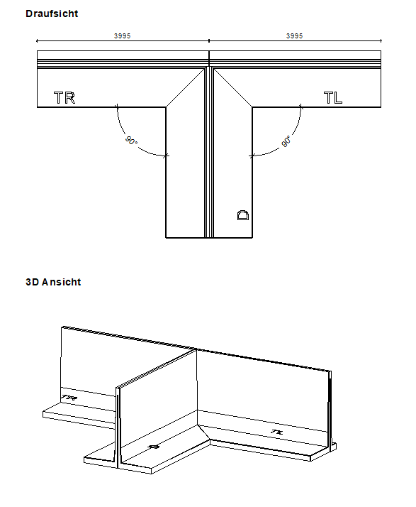
Standard-Ecklösung
Für all unsere Stützwandmodelle ist eine Standard-Ecklösung von 90 Grad erhältlich. Im Fall eines anderen Winkels kann eine Ecklösung nach Maß angefertigt werden.
Wenn Sie uns eine Lageskizze zukommen lassen, zeichnen wir die Ecklösung für Sie ein. So ist gewährleistet, dass Sie eine passende Lösung nach Maß bekommen.
Wenn Sie uns eine Lageskizze zukommen lassen, zeichnen wir die Ecklösung für Sie ein. So ist gewährleistet, dass Sie eine passende Lösung nach Maß bekommen.
-
Wir arbeiten gerne nachhaltig, auch wenn es um Maßarbeit geht. Wenn Sie uns rechtzeitig informieren, können wir die gewünschte Anpassung schon im Voraus einplanen. So verhindern wir unnötige Materialverschwendung oder Sägearbeiten nach der Produktion.
-
Wenn sich bei einer Wandanpassung Abfälle nicht verhindern lassen, recyceln wir den Betonabfall und führen wir ihn dem Produktionsprozess wieder zu.
Abschrägung
Für all unsere Stützwandtypen ist eine über die halbe Höhe/Länge abgeschrägte Ausführung erhältlich, zum Beispiel für ein Lagersystem oder Fahrsilo, bei dem die letzte Wand abgeschrägt wird, um eine bessere Sicht zu bekommen.
Wenn Sie eine anders abgeschrägte Kante oder eine über mehrere Elemente verlaufende Abschrägung benötigen, können wie eine Abschrägung nach Maß vornehmen.
Wenn Sie uns eine Lageskizze zukommen lassen, zeichnen wir die Schräge für Sie ein. So ist gewährleistet, dass Sie eine passende Lösung nach Maß bekommen.
Wenn Sie eine anders abgeschrägte Kante oder eine über mehrere Elemente verlaufende Abschrägung benötigen, können wie eine Abschrägung nach Maß vornehmen.
Wenn Sie uns eine Lageskizze zukommen lassen, zeichnen wir die Schräge für Sie ein. So ist gewährleistet, dass Sie eine passende Lösung nach Maß bekommen.
-
Wir arbeiten gerne nachhaltig, auch wenn es um Maßarbeit geht. Wenn Sie uns rechtzeitig informieren, können wir die gewünschte Anpassung schon im Voraus einplanen. So verhindern wir unnötige Materialverschwendung oder Sägearbeiten nach der Produktion.
-
Wenn sich bei einer Wandanpassung Abfälle nicht verhindern lassen, recyceln wir den Betonabfall und führen wir ihn dem Produktionsprozess wieder zu.